Maeve Dubbel chalet op maat
€ 99.000,00Specificaties
Dubbel Chalet Maeve te koop bij Kuiper Caravans in Waarland, Noord-Holland.
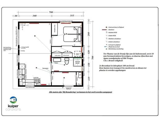
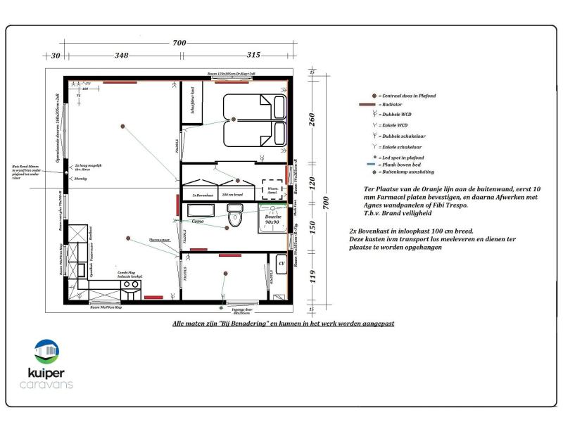
Een dubbel chalet dat wij volledig op maat bouwen, afgestemd op al uw wensen. U kunt kiezen uit een ruim assortiment aan keukens, vloeren, wandafwerkingen en uiteraard de indeling. Het getoonde chalet is een dubbel chalet, bestaande uit twee delen die gekoppeld zijn. Bij de foto's vindt u voorbeelden van mogelijke indelingen. Uiteraard horen wij graag uw specifieke wensen, zodat we het chalet volledig naar wens kunnen realiseren.
Afmetingen
Dit chalet is verkrijgbaar vanaf een lengte van 4 meter en kan worden verlengd tot maximaal 14 meter. Alle tussenliggende lengtes zijn bespreekbaar. De breedte begint bij 6 meter en kan maximaal 9 meter bedragen.
Keuken
Wilt u een keuken met een kookeiland, of bijvoorbeeld een U- of L-vorm? Wij ontwerpen samen met u de ideale keuken. De keuze in keukenapparatuur is eindeloos, net zoals de mogelijkheden qua kleuren en materialen. Maak u geen zorgen, wij begeleiden u bij elke stap van het proces.
Slaapkamers
Afhankelijk van de afmetingen van het chalet kan het aantal slaapkamers variëren. Het chalet wordt volledig naar uw wens gebouwd, dus u bepaalt zelf het aantal slaapkamers.
Badkamer
Een of zelfs twee badkamers? Alles is mogelijk! De indeling van de badkamer kunt u zelf samenstellen in onze fabriek, van een douche tot een bad, of beide. U heeft de keuze.
Opties tegen meerprijs:
- Luxe kunststof houtlook gevelbekleding
- Antraciet kunststof kozijnen (andere kleuren mogelijk)
- Volledig elektrische uitvoering
- Magnetron of combimagnetron
- Vaatwasser
- Spiegelbeeld chalet (entree deur(en) aan de andere zijde)
- Terras of overkapping
- Airco
Kom gerust langs op ons showterrein om het Chalet Maeve te ervaren en de mogelijkheden met ons te bespreken. Het chalet is ook zeer geschikt om als mantelzorgchalet op maat te laten bouwen.
De genoemde prijs is een vanafprijs voor het dubbel chalet. Wilt u meer weten over dit model?
Neem dan vrijblijvend contact met ons op!
Chalet Maeve kunnen wij volledig op maat en naar alle wensen bouwen. U kunt kiezen uit ruim assortiment van keukens, vloer kleuren, wanden en uiteraard de indeling. Het getoonde chalet is een dubbel chalet welke gekoppeld is en bestaat uit 2 delen. Bij de foto's zijn voorbeelden qua indeling, uiteraard horen wij graag uw wensen zodat wij een chalet naar wens kunnen bouwen.
Kom gerust eens langs op ons showterrein om het Chalet Maeve te ervaren en de mogelijkheden te bespreken. Ook is de Maeve zeer geschikt om als Zorg chalet op maat te laten bouwen.
Genoemde prijs is een vanafprijs voor het dubbel chalet. Vraag naar de mogelijkheden of kom langs.
- Apart toilet
- Bad
- Badkamer
- Boiler/Geiser
- Centrale verwarming
- Combimagnetron
- Douche
- Dubbele beglazing
- Elektrische kachel
- Erker
- Fibo trespa in de badkamer
- Inbouwkoelkast
- Kachel
- Keuken
- Koelkast
- Koelvriescombinatie
- Kookgelegenheid
- Magnetron
- Oven
- Puntdak
- TV aansluiting
- Vaatwasser
- Vriezer
- Wasbak
- Winterisolatie























